37
$674,888 Sale
Listed 9 hours ago
85 Elvira Way
· 3
· 2.50
· 3
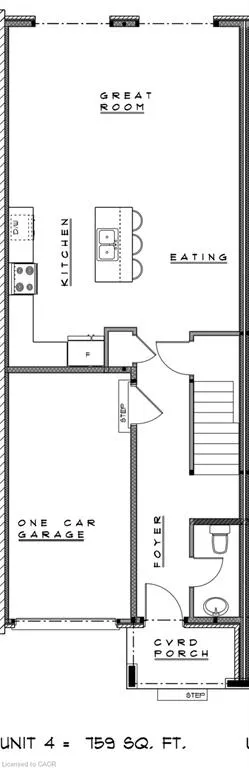
· 1683
Key Facts
Key facts for 85 Elvira Way
Property Type
Other, Two Story
Parking
1 garage, Private Drive Single Wide 3 parking
MLS #
40777527
Size
1683 sqft
Basement
Full,Unfinished
Listed on
2025-10-08
Lot size
-
Tax
-
Days on Market
1
Year Built
-
Maintenance Fee
-
Description
Welcome to your dream home in one of Thorold’s fastest growing and most desirable communities. Proudly built by Marken Homes, one of Niagara’s most respected and trusted builders. This brand new, move in ready townhouse showcases superior craftsmanship, thoughtful design, and high-quality finishes t...hroughout. Offering 3 spacious bedrooms and 2.5 modern bathrooms, this home blends comfort and style with a functional layout perfect for families or professionals. From the moment you enter, you’ll appreciate the elegant touches and contemporary features that define Marken’s signature standard of excellence. Situated on the quiet and family friendly Elvira Way, this property offers a perfect balance of privacy and convenience. Surrounded by newly developed homes, parks, schools, and with quick access to major highways, this location is ideal for those seeking both community and connectivity. Don’t miss your chance to own a beautifully built home in one of Niagara’s most promising neighborhoods. Simply turn the key and enjoy the perfect combination of comfort, quality, and style., Directions:Elvira Way, Exclusions:
Similar Properties (No results)
Listing courtesy of: Homelife Professionals Realty Inc.